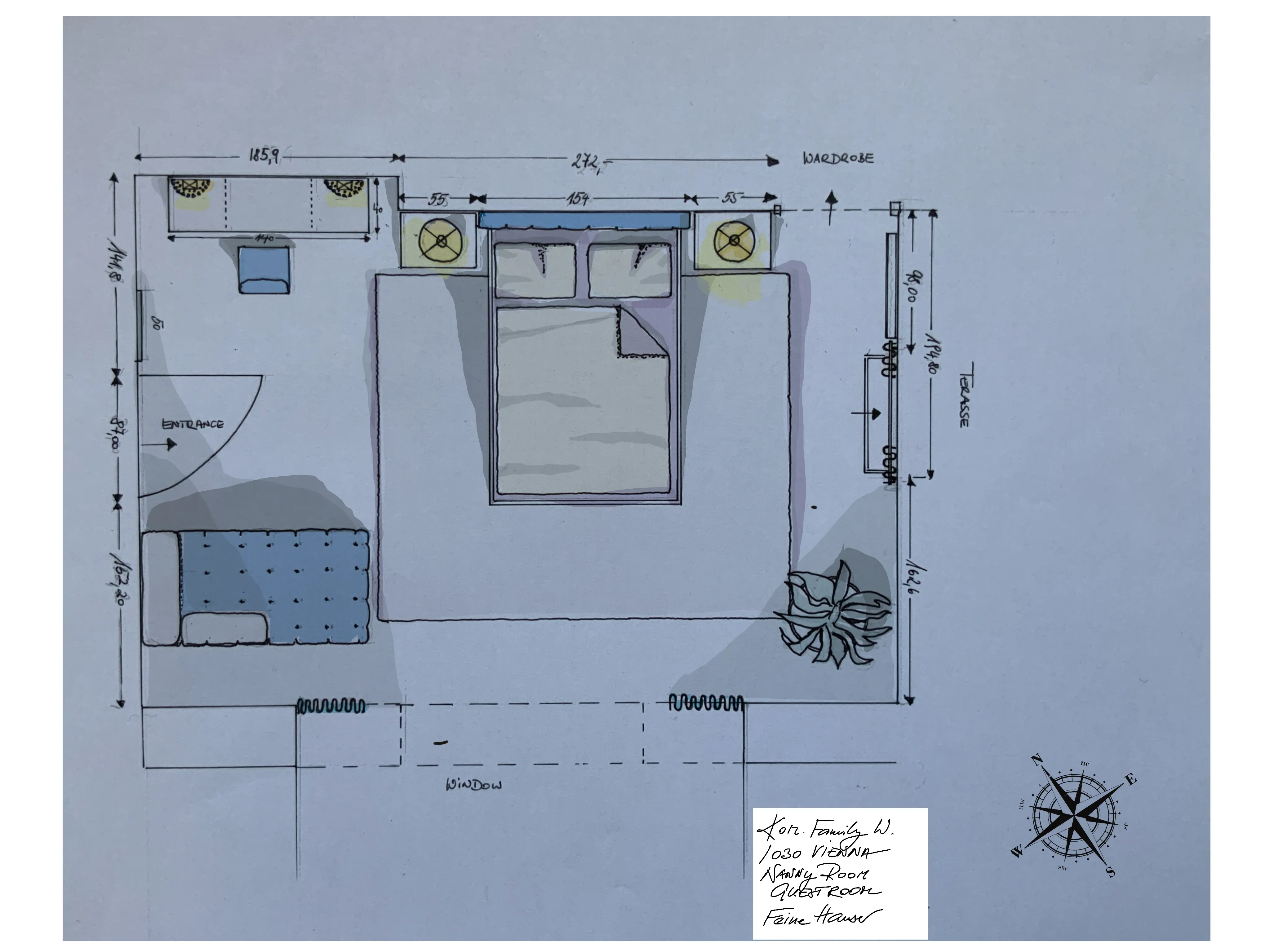
Nanny Zimmer

Scroll down

Ein wunderschönes harmonisches Projekt für meine britischen Kunden.

Projekt Bild: Nanny Zimmer
Projekt Bild: Nanny Zimmer
/ fh 56 bett & chaiselongue wittmann

Da darf die Verspieltheit Einzug halten. Mit zarten und doch kräftigen Farben, kuscheligen Oberflächen, Rundungen und ganz viel Helligkeit in Bezugs- und Möbelstoffen, Tapeten und Teppichen. Und hier in dieser Atmosphäre fühlt sie sich wohl und schläft besonders gut.

Projekt Bild: Nanny Zimmer
Projekt Bild: Nanny Zimmer
Projekt Bild: Nanny Zimmer
Projekt Bild: Nanny Zimmer
Projekt Bild: Nanny Zimmer
Projekt Bild: Nanny Zimmer
/ fh 57 tapeten designers guilt

Eine passende Tapete gibt Räumen immer etwas sehr Besonderes.